19 Boundary Street, BUNDABERG SOUTH
Retail
OUTSTANDING BUILDING AND LOCATION
Gone through the numbers on buying a site, developing into a set of offices or retail showroom and found out it's a lot more expensive than you thought - not to mention finding a builder that would do the job? Look no further - this building and location with all the hard work done is for you.
Lease price:
• Prior lease amount: $79,281.24 + GST + Out Goings.
• Present Offers.
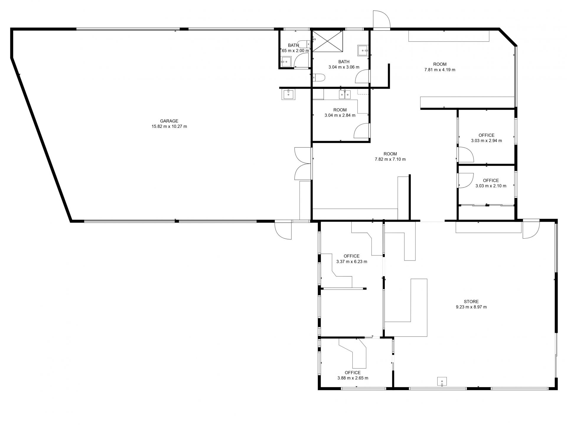
Features are:
• Approximately 400m2 building. Rendered concrete block with Colorbond roof.
• Building consisting of retail area, offices, storage/workshop.
• Commercial grade epoxy flooring.
• 911m2 lot with all drive through concrete hardstand, landscaping and colour bond fencing.
• 9 off street parks plus on street parking.
• Ducted Air conditioning.
• Built in kitchen.
• Built in counters and office desks with storage and drawers.
• Data system.
• Electric entrance door to retail area.
• Mens and Womens toilets plus shower.
• Current Vacant.
You will need to act quickly as this property has had the same tenant since 1997 -28 years. So book your inspection today!
For further information or to arrange an inspection, please contact the Listing Agent John Pappalardo on 0427 875 396 or john.papp@thefourwalls.com.au today.
DISCLAIMER: The information provided is for use as an estimate only and potential purchasers should make their own inquiries to satisfy themselves of any matters. We have used our best endeavours to ensure the information contained is true and accurate but accept no responsibility and disclaim all liability in respect to any errors, omissions, inaccuracies or misstatements contained.
Lease price:
• Prior lease amount: $79,281.24 + GST + Out Goings.
• Present Offers.
Features are:
• Approximately 400m2 building. Rendered concrete block with Colorbond roof.
• Building consisting of retail area, offices, storage/workshop.
• Commercial grade epoxy flooring.
• 911m2 lot with all drive through concrete hardstand, landscaping and colour bond fencing.
• 9 off street parks plus on street parking.
• Ducted Air conditioning.
• Built in kitchen.
• Built in counters and office desks with storage and drawers.
• Data system.
• Electric entrance door to retail area.
• Mens and Womens toilets plus shower.
• Current Vacant.
You will need to act quickly as this property has had the same tenant since 1997 -28 years. So book your inspection today!
For further information or to arrange an inspection, please contact the Listing Agent John Pappalardo on 0427 875 396 or john.papp@thefourwalls.com.au today.
DISCLAIMER: The information provided is for use as an estimate only and potential purchasers should make their own inquiries to satisfy themselves of any matters. We have used our best endeavours to ensure the information contained is true and accurate but accept no responsibility and disclaim all liability in respect to any errors, omissions, inaccuracies or misstatements contained.
