43 - 45 Walker, BUNDABERG SOUTH
Industrial
PRIME SITE - PROFESSIONAL BUSINESS OR MOTOR DEALERS
This is the first time this proven location has been offered for lease to the public. The site has been home to a successful business for 80 years and now it's your turn to prosper.
This site would suit ether a car, motor bike, mower equipment dealers, conversion to professional business or offices for NDIS, with solar power to help with those power bills.
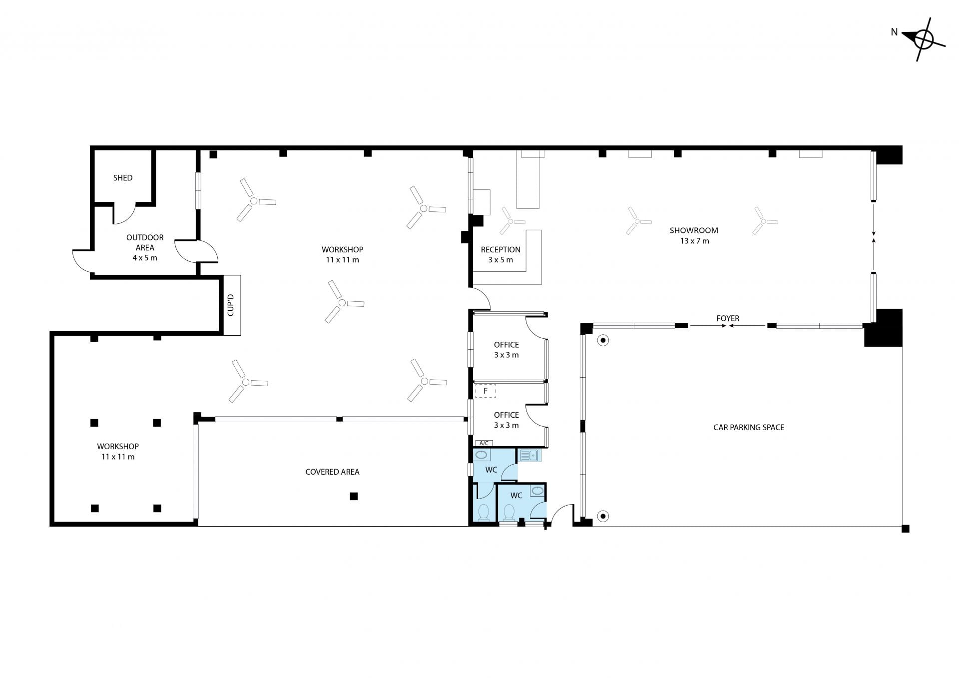
This versatile site boasts:
• Main road frontage to Walker Street
• Solar power
• Male and female toilet
• Service area equipped with two hoists
• Three phase power
• 154m2 of retail showroom and/or more offices
• 253m2 service area and/or storage
• 130m2 of covered display area or car parking
• 40m2 of open display area
• 340m2 customer car parking
• Total area for lease 917m2
This is perfect for a startup or growing business - don't miss your opportunity.
For further information or inspection please call, email or text the listing agent Brant Duff on 0413 136 857 or email brant@thefourwalls.com.au or John Pappalardo on 0427 875 396 or email john.papp@thefourwalls.com.au.
DISCLAIMER: The information provided is for use as an estimate only and potential purchasers should make their own inquiries to satisfy themselves of any matters. We have used our best endeavours to ensure the information contained is true and accurate but accept no responsibility and disclaim all liability in respect to any errors, omissions, inaccuracies or misstatements contained.
This site would suit ether a car, motor bike, mower equipment dealers, conversion to professional business or offices for NDIS, with solar power to help with those power bills.
This versatile site boasts:
• Main road frontage to Walker Street
• Solar power
• Male and female toilet
• Service area equipped with two hoists
• Three phase power
• 154m2 of retail showroom and/or more offices
• 253m2 service area and/or storage
• 130m2 of covered display area or car parking
• 40m2 of open display area
• 340m2 customer car parking
• Total area for lease 917m2
This is perfect for a startup or growing business - don't miss your opportunity.
For further information or inspection please call, email or text the listing agent Brant Duff on 0413 136 857 or email brant@thefourwalls.com.au or John Pappalardo on 0427 875 396 or email john.papp@thefourwalls.com.au.
DISCLAIMER: The information provided is for use as an estimate only and potential purchasers should make their own inquiries to satisfy themselves of any matters. We have used our best endeavours to ensure the information contained is true and accurate but accept no responsibility and disclaim all liability in respect to any errors, omissions, inaccuracies or misstatements contained.
