1/5 Scotland Street, BUNDABERG EAST
Industrial
554m2 - POSITION, TILT SLAB AND HIGH CLEARANCE PREMISES
Adjoining National Companies, this outstanding property is now available for lease, offering a fantastic opportunity for business owners looking to establish themselves in a prime location.
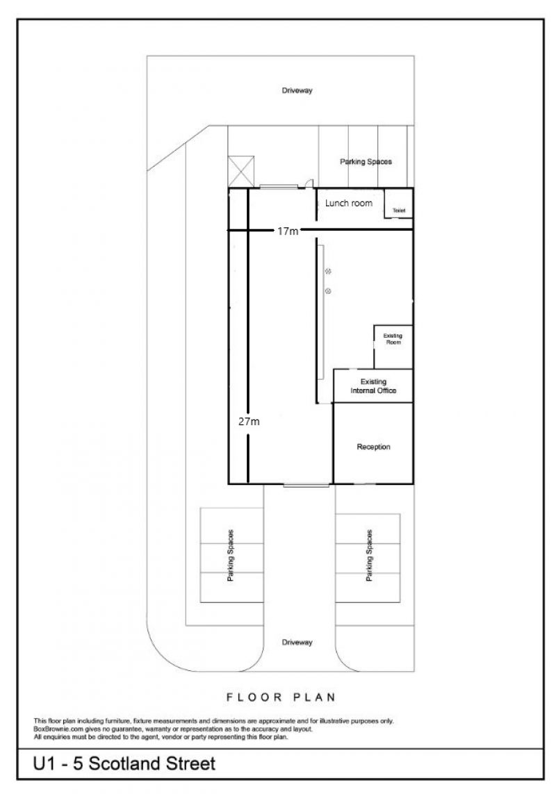
Situated on 1,012m2, this property boasts a substantial building area of 500m2 and internal floor area of 456m2, including reception plus approximately 95m2 of upstairs offices and mezzanine. The spacious layout provides ample room for various industries, retail or warehouse purposes, allowing you to unleash your entrepreneurial vision and add to your existing growing business or just need the space to create a new thriving business.
Property Features Include:
• internal floor area of 456m2 + 95m2 upstairs mezzanine
• Large area offices about half of building is air-conditioned
• Insulated, drive through, own amenities
• 4.5m clearance roller doors
• Rear access, plenty customer parking
• Just off busy road to CBD, Bargara, Bundaberg Port and Bundaberg Ring Road
• Owner will consider options
Bundaberg East and out to Bargara are areas of strong growth with many housing estates on this side of the city.
In addition to its prime location and generous size, this property also offers a range of other features that will enhance your business operations if needed. Whether it is ample parking space, high visibility for advertising or convenient access to major transport routes, this property has it all.
Do not miss this chance to secure a prime space in Bundaberg East! Available for inspection by contacting the marketing agents. If this property suits your budget and requirements, ensuring that you can negotiate, inspect today.
For further information or to arrange an inspection, please call or text John Pappalardo on 0427 875 396 or email john.papp@thefourwalls.com.au today or Brant Duff on 0413 136 857 or email brant@thefourwalls.com.au.
DISCLAIMER: The information provided is for use as an estimate only and potential purchasers should make their own inquiries to satisfy themselves of any matters. We have used our best endeavours to ensure the information contained is true and accurate but accept no responsibility and disclaim all liability in respect to any errors, omissions, inaccuracies, or misstatements contained.
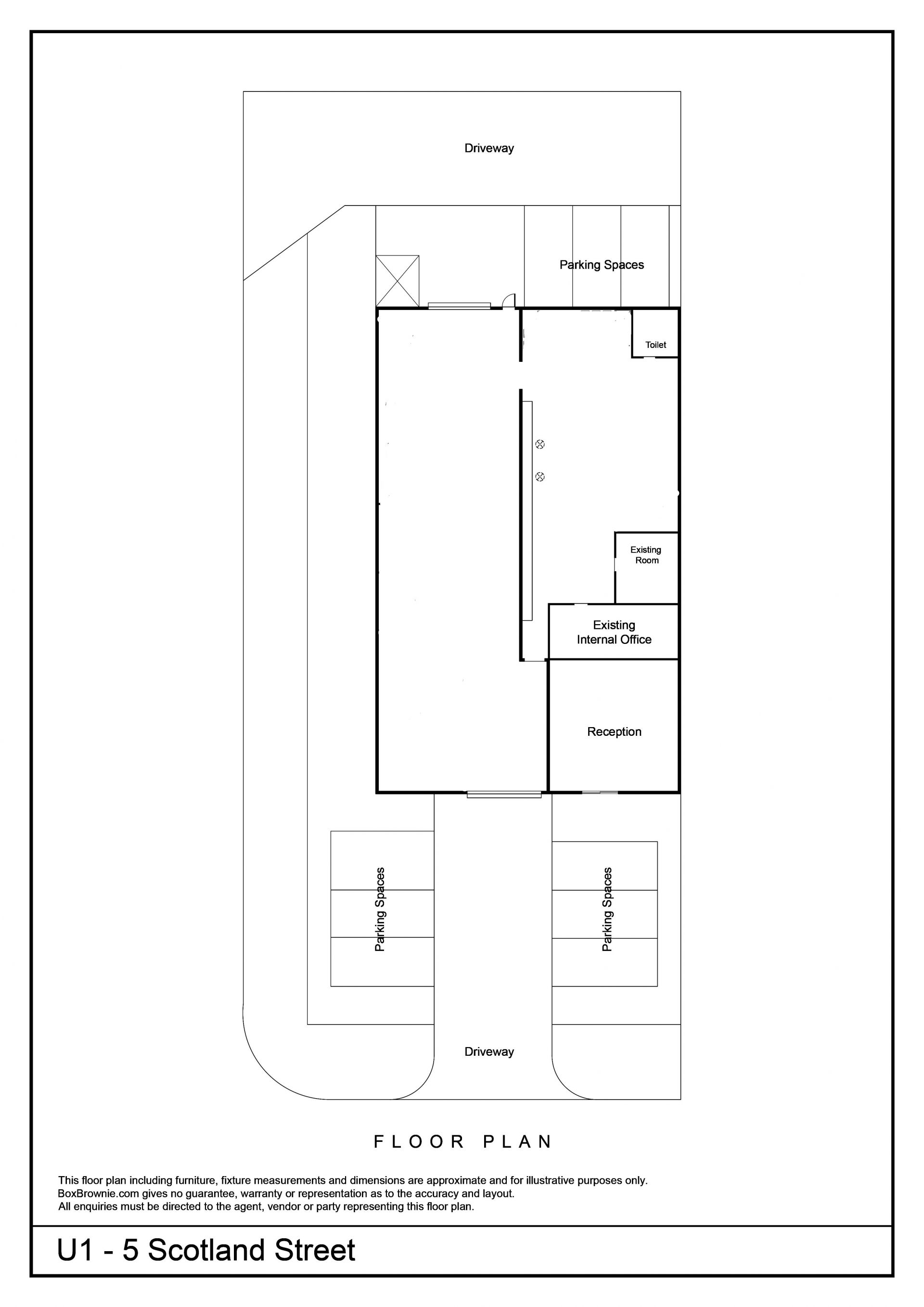
Situated on 1,012m2, this property boasts a substantial building area of 500m2 and internal floor area of 456m2, including reception plus approximately 95m2 of upstairs offices and mezzanine. The spacious layout provides ample room for various industries, retail or warehouse purposes, allowing you to unleash your entrepreneurial vision and add to your existing growing business or just need the space to create a new thriving business.
Property Features Include:
• internal floor area of 456m2 + 95m2 upstairs mezzanine
• Large area offices about half of building is air-conditioned
• Insulated, drive through, own amenities
• 4.5m clearance roller doors
• Rear access, plenty customer parking
• Just off busy road to CBD, Bargara, Bundaberg Port and Bundaberg Ring Road
• Owner will consider options
Bundaberg East and out to Bargara are areas of strong growth with many housing estates on this side of the city.
In addition to its prime location and generous size, this property also offers a range of other features that will enhance your business operations if needed. Whether it is ample parking space, high visibility for advertising or convenient access to major transport routes, this property has it all.
Do not miss this chance to secure a prime space in Bundaberg East! Available for inspection by contacting the marketing agents. If this property suits your budget and requirements, ensuring that you can negotiate, inspect today.
For further information or to arrange an inspection, please call or text John Pappalardo on 0427 875 396 or email john.papp@thefourwalls.com.au today or Brant Duff on 0413 136 857 or email brant@thefourwalls.com.au.
DISCLAIMER: The information provided is for use as an estimate only and potential purchasers should make their own inquiries to satisfy themselves of any matters. We have used our best endeavours to ensure the information contained is true and accurate but accept no responsibility and disclaim all liability in respect to any errors, omissions, inaccuracies, or misstatements contained.
